
本物の質感とデザインを、
手に届く価格で。
『木を使った、本物の家づくり』
『”日本の住文化=心”を大切にした、心から落ち着く場所』
という設計思想・コンセプトの下、
自然豊かな周辺環境を生かした
こだわりの家づくりを行っている株式会社ヤマイチ。
四季の自然を感じ、その移ろいを愉しむ。
いつまでも美しく、色褪せないデザインにする。
住まうほどに味が出る、本物の素材にこだわる。
安全で安心できる性能や品質を届ける。
快適に永く住まうための住環境を整える。
それが、創業期から変わらない
私たちの家づくりに対する信条です。
近年、建築資材価格高騰やインフレにより、
新築注文住宅に手が届きにくくなっている
状況が生じています。
そんな状況の中で、いつまでも心地よく幸せに暮らせる、
本当に価値のある住まいを
一人でも多くの人にお届けしたい。
その想いをかたちにした、ヤマイチオリジナルの
パターンオーダー型コンセプトハウスブランド『KURUMI』
仕様や性能・品質に徹底的にこだわりながらも、
コンパクトでシンプルな間取りと
良質な規格マテリアルを活用することで、
クオリティや機能性はそのままに
手の届きやすい価格を実現した
コンセプトハウスブランドです。
KURUMIの設計思想
KURUMIには、街並みに馴染み、景観に溶け込む美しい家を叶えるための、設計やデザインに対する独自の哲学やポリシーがあります。
明るく開放的な、外と繋がる空間をつくり、家にいながら四季折々の自然を味わえる、心地よい暮らしを提供します。
01
いつまでも美しい、
普遍的な外観デザイン
■塗り壁を基調とした美しい佇まい

外観は、ナチュラルカラーの塗り壁を基調とすることで、時を経ても美しく、柔らかい印象に。天然木で作るドアが塗り壁と調和し、上質な佇まいを演出しています。
■水平ラインを描いた深い軒

日本の住文化に欠かすことができない軒。軒を機能性のみならず家のデザインとしても大切にしており、美しい水平ラインにより凛とした佇まいを演出しています。
02
暮らしやすい間取りと
コストパフォーマンスの両立
■いつまでも暮らしやすい間取り

ご家族にとって適切な広さや機能を持った住まいをご提案させていただきます。コンパクトな敷地でも、実際の面積以上に広々と感じられることや、家事動線を工夫することにこだわりを持っています。
■最適なスペース・建具の配置

廊下を少なくすることで、スペースを有効活用した無駄のない間取りに。プライバシー性も叶えたメリハリを設ける一方で、無駄な建具を排除することでコストパフォーマンスを高める工夫も行っています。
03
立地環境を生かした
家・庭一体の空間
■「縁側」という中間領域

大開口サッシを介してリビングとひと繋がりのウッドデッキには椅子を置いて家族で団欒をしたり、のんびり自然を眺めながら一人の時間を愉しんだり、思い思いの使い方で時を過ごしていただきたいと考えています。
■「庭」というソト空間

暮らしに自然を取り入れることを大切に設計を行っており、小さくても庭を作ることをご提案しています。暮らしの中で、四季の自然の移ろいを肌で感じ、味わうことこそが、暮らしの価値を高めます。
04 良質で、本物の素材の活用
■無垢の木の床材

年輪の凹凸が美しい風合いを演出し、温かみもあり経年変化により味も出てきます。無垢材特有の調湿性と断熱性で、四季を通して心地よい暮らしの実現に繋がります。
■ドイツ製本漆喰の壁

耐久性や耐火性が強く、吸湿性・放湿性にも優れていることに加え、室内の空気を浄化してくれるのみならず、その美しく優しい風合いは住まう家族に安らぎを与えます。
プラン例
家はただ広ければ暮らしやすいかと言うと、決してそんなことはありません。
これまで様々な立地や家族構成、ライフスタイルのお客様の家づくりの経験を通して、住まい手にとっての最適な広さや間取りを熟知しています。
本当に価値が高く、ゆとりを持った人生を送っていただくための、暮らしやすい間取りやコストパフォーマンスが高い家を約束します。
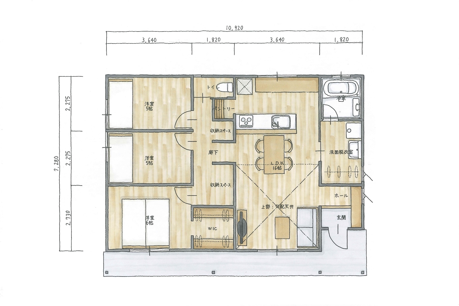
Case 01 24坪平屋


1F
| 延床面積 | 77.84㎡(23.50坪) | 施工面積 | 89.43㎡(27.00坪) |
|---|
参考価格 2,480万円(税込み)
※上記価格に含まれないもの:地盤改良工事・外構工事
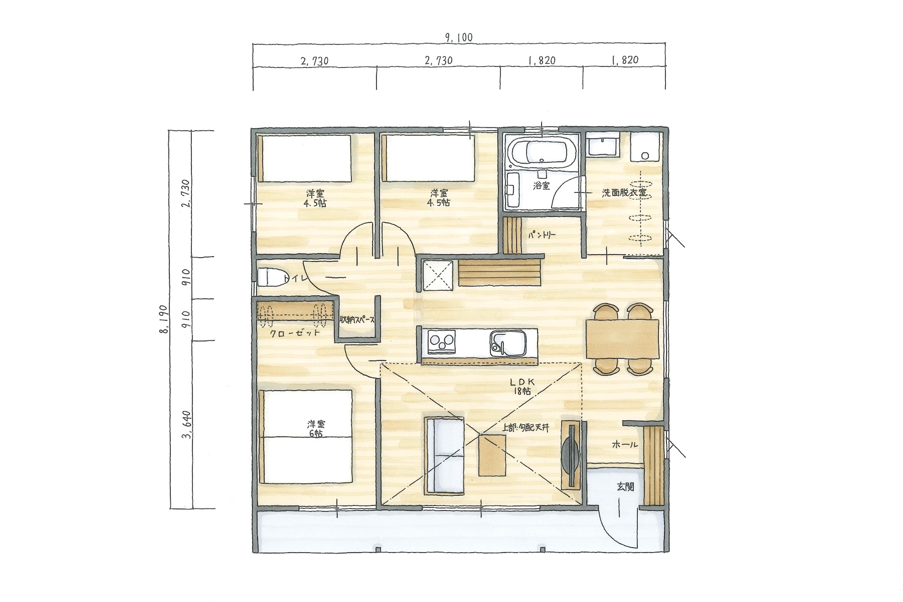
Case 02 25坪平屋


1F
| 延床面積 | 79.49㎡(24.00坪) | 施工面積 | 90.084㎡(27.20坪) |
|---|
参考価格 2,550万円(税込み)
※上記価格に含まれないもの:地盤改良工事・外構工事
Case 03 23坪平屋


1F
| 延床面積 | 79.50㎡(24.00坪) | 施工面積 | 91.084㎡(27.20坪) |
|---|
参考価格 2,500万円(税込み)
※上記価格に含まれないもの:地盤改良工事・外構工事
数字に裏打ちされた高い性能
家にとってデザインや質感も大切ですが、自然災害の多い国だからこそ、安心して暮らし続け、安全に永く住み継げる高い性能を実現することも大切です。
KURUMIを展開するヤマイチは、耐震性や断熱性・気密性などの様々な面において、第三者機関でしっかりと検査を行い、数字に裏打ちされた高い性能に自信を持っています。これからも住まい手にとって最良な性能、そして高い品質基準を満たした家だけをご提供し続けます。
01 高い耐震性:耐震等級3

KURUMIを運営するでは、耐震性の最高等級である「耐震等級3」の取得を目指しています。
さらに私たちは、揺れを抑える制震性にも着目しており、地震のエネルギーを吸収・分散し、建物へのダメージを軽減することで、
繰り返す地震や余震からも、住まいの性能を守り続けます。「倒れない」だけでなく、長く安心して住み続けられること。それが、私たちが考える本当の耐震品質です。地震大国日本で、いつか来ると言われている大地震に備えるためにも、お客様に永く安心して暮らしていただけるような家づくりを行っています。
02
高い断熱性:
ZEH水準・断熱性能等級5以上

KURUMIでは、ZEH水準・断熱性能等級5以上の性能を基本としています(Ua値0.60以下)。
高水準の断熱性をクリアすることが、下記のような健康で快適、そして経済的な暮らしを実現することに繋がります。
<高断熱のメリット>
①各部屋の温度差を抑えることができ、ヒートショックによる健康リスクを低減できます。
②室内の足元から天井までの温度差が小さくなることで体感温度が上がり、消費電力を抑えるような温度設定でも快適です。
③熱が逃げにくく保温効果が上がることで、室内温度の変化が緩やかになり、就寝前に空調を止めても快適な朝を迎えることができます。
④上記②や③により、冷暖房による電気代を大幅に節約することができます。
⑤断熱性の低い住宅で暮らすよりも高い住宅で暮らす人の方が、ぜんそくやアトピーなどの改善率が高いという報告があり、健康改善効果も期待できます。
03
アルミ・樹脂複合サッシ
『高性能窓LIXIL TW』

サッシは断熱性に加え、住宅の意匠性に大きく関わります。KURUMIでは美しい外観デザインにこだわっているからこそ、性能と意匠性を兼ね備えた選択肢を吟味し、選び抜いています。
断熱性の高いアルミ・樹脂複合サッシである『LIXIL TW』を使用しています。室外側に強度・耐久性に優れたアルミを採用し、雨や風、日差しによる劣化を防止する一方で、室内側には断熱性に優れた樹脂を採用し、熱の出入りを抑制しています。アルミの良さと樹脂の良さを融合させた「ハイブリッド窓」を採用することで、暑さや寒さ、結露を軽減し、冷暖房効率・省エネ性を向上させて光熱費などのランニングコストも抑えています。
04 高い気密性

高い気密性を確保することで、建物内外の空気の流出や侵入を防ぎます。そうすることで室内の温度や湿度を維持しやすく省エネに繋がることに加え、室内の計画換気効率を高めて空気を清潔に保ちます。
また株式会社ヤマイチでは、長くお付き合いのある熟練の職人が1棟1棟丁寧に施工する体制を整えていることに加え、気密測定を行い、気密性を表すC値=0.5[㎠/㎡]以下を達成することを推奨しています。
安心の保証・アフターメンテナンス
私たちは創業25年以上、地域で家づくりのお手伝いをする中で痛感しているのが保証制度やアフターメンテナンスの重要性です。
お引渡しをしてからが本当のお付き合いのスタートであることを信条とし、充実した保証やアフターメンテナンス体制を構築しています。お客様が永く安心して暮らしていけるような保証制度やアフターメンテナンス体制に自信を持っており、お引渡し後もいつでも手厚くかつ迅速にサポートし続けます。
01
第三者機関による建物保証
(完成後10年間)

お客様が長い間快適に、そして安心して暮らしていただけるよう、完成後10年間、第三者機関による建物保証を行っています。
住宅瑕疵担保責任保険の加入が義務付けられ、瑕疵(かし)に対して10年間の瑕疵担保責任を負います。万が一、住宅会社が倒産しても、構造躯体の瑕疵、外部からの雨水の侵入に対し、10年間修補費用をお客様が負担することはありません。
なお、10年後以降も住宅点検を受けるなどした上での再延長も可能です。
02 完成引渡し保証

完成前に、万が一住宅会社が倒産した場合でも、完成・お引渡しまでを保証する「住宅完成保証制度」に登録しています。
厳しい審査基準をクリアした建築会社が登録可能な保証制度となっており、お客様の財産となる建築中の建物にも安心・安全をご提供しています。
03
地盤保証(基礎工事を
開始した日からお引渡し後20年)

工事期間中から20年間、第三者機関による地盤保証を行っています。
地盤は家の基礎となる部分です。安心・安全に暮らしていただけるよう、しっかりと地盤調査を行い、解析結果に基づく施工を行った上で工事を始めます。
基礎着工日に始まりお引渡し後20年間、地盤の安全を保証いたします。
04 定期アフターメンテナンス体制

KURUMIでは、お引渡し後1年・2年・3年・5年・10年と定期的な家のメンテナンスを実施しており、お客様が永く安心して暮らしていけるように、お引渡し後もいつでも手厚くかつ迅速にサポートいたします。
家の不具合いのご相談だけでなく、ご自身でできる設備のお手入れ方法や日々の暮らしを楽しむためのアドバイスもさせていただいています。
ご相談の流れ
01 モデルハウス体感

KURUMIを運営する株式会社ヤマイチには、株式会社ヤマイチ建築の世界観を体現する『頂』と『継』という2棟のモデルハウスがございます。KURUMIが気になった方にも、その参考になるため、まずは是非モデルハウスを体感ください。
モデルハウスの体感と合わせて家づくり相談会にて、KURUMIについての詳しいご説明はもちろん、お金のことや土地のこと、間取りやデザインのことに至るまで、家づくりに関する様々なご相談に乗らせていただきます。
モデルハウス体感ご希望の方は、お電話で「モデルハウスを体感したいのですが…」とお伝えください。または以下の予約フォームからもご予約いただけます。
tel. 027-288-5922
営業時間 9:00~18:00(水曜定休)
02 資金計画・土地探し

理想の家のバランスを考えて、全体のご予算から建物にかける金額や土地にかける金額、住宅ローン等に関する費用をトータルで検討していきます。
また、土地をお持ちでない方には、土地探しを行わせていただきます。また、土地をお持ちの方は、敷地状況を拝見させていただきます。
03 ラフプランのご提案

資金計画や土地探し・敷地調査が終わったら、ライフスタイルヒアリングをさせていただき、そちらを基にラフプランと概算見積金額をご提案させていただきます。
KURUMIの世界観を体現した暮らしやすいプランを是非楽しみにしていてください。
モデルハウス『頂』※完全予約制
温熱性能や構造、空気質、そして佇まいと空間の美しさ。
長年にわたるヤマイチの家づくりの経験を生かし、全ての頂点を目指した究極の平屋+αの木の住まいです。


モデルハウス頂アクセス
〒371-0831
群馬県前橋市小相木町376-2
営業時間/9:00~18:00(水曜定休)
027-288-5922
※事前のご予約をお願いしております。
お電話または下記の予約フォームからご予約ください。
モデルハウス『継』※完全予約制
この度完成したのは、街かどに建つ等身大モデルハウス。
コンパクトな敷地でも、庭の自然を味わいながら開放的に暮らしたい。そんな想いを叶えた建築です。


モデルハウス継アクセス
〒371-0821 群馬県前橋市上新田町444-1
営業時間/9:00~18:00(水曜定休)
027-288-5922
※事前のご予約をお願いしております。
お電話または下記の予約フォームからご予約ください。

